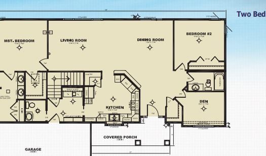
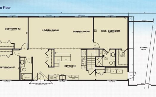
Thank you for visiting Singleton Building! Whether you have a blueprint in hand or are just beginning to look at ideas, we are here to make your home building experience exciting and customized just for you. Our experienced local experts will guide you through each step and empower you to enjoy the building process. Let us build your dream home!
load more listings












